Trabzon'da Prof. Dr. Bektaş'ın açıklamalarına TİSKİ'den cevap! "İddialar asılsız"
Trabzon Büyükşehir Belediyesi TİSKİ Genel Müdürlüğü'nden Jeoloji Mühendisi Prof. Dr. Osman Bektaş'ın açıklamalarına yalanlama geldi.
TİSKİ'den yapılan açıklamada, Atasu Barajı’nda depolanan içme suyunun insan sağlığını tehdit eden ağır metal iyonlarınca kirletildiği yönündeki iddiaların asılsız olduğu ifade edildi.
TİSKİ'den yapılan açıklama şu şekilde;
Bazı basın ve yayın organlarında yer alan haberlerde; Trabzon Atasu Barajı’nda depolanan içme suyunun insan sağlığını tehdit eden ağır metal iyonlarınca kirletildiği, bunun sonucu olarak da şehrimizde içme suyunun sağlıklı olmadığı iddia edilmektedir.
Bu asılsız iddiaların dayanak noktası olarak ise, Ankara Büyükşehir Belediyesi ASKİ Genel Müdürlüğü tarafından yayımlanan su kalite kontrol raporu temel alınmış olup; bu raporda yer alan parametrelerle Trabzon Büyükşehir Belediyesi TİSKİ Genel Müdürlüğünün yayımladığı su analiz raporlarında yer alan parametrelerin örtüşmediği iddia edilmiştir. Ankara Büyükşehir Belediyesi ASKİ Genel Müdürlüğünün daha fazla parametrede analiz raporları yayınladığı belirtilmesinin yanında; TİSKİ’ye ait analiz raporlarında Kadmiyum, Civa, Kurşun, Nikel, Selenyum, Baryum, Kobalt, Bakır, Arsenik ve Siyanür gibi parametrelerin yer almadığı da ileri sürülmüştür.
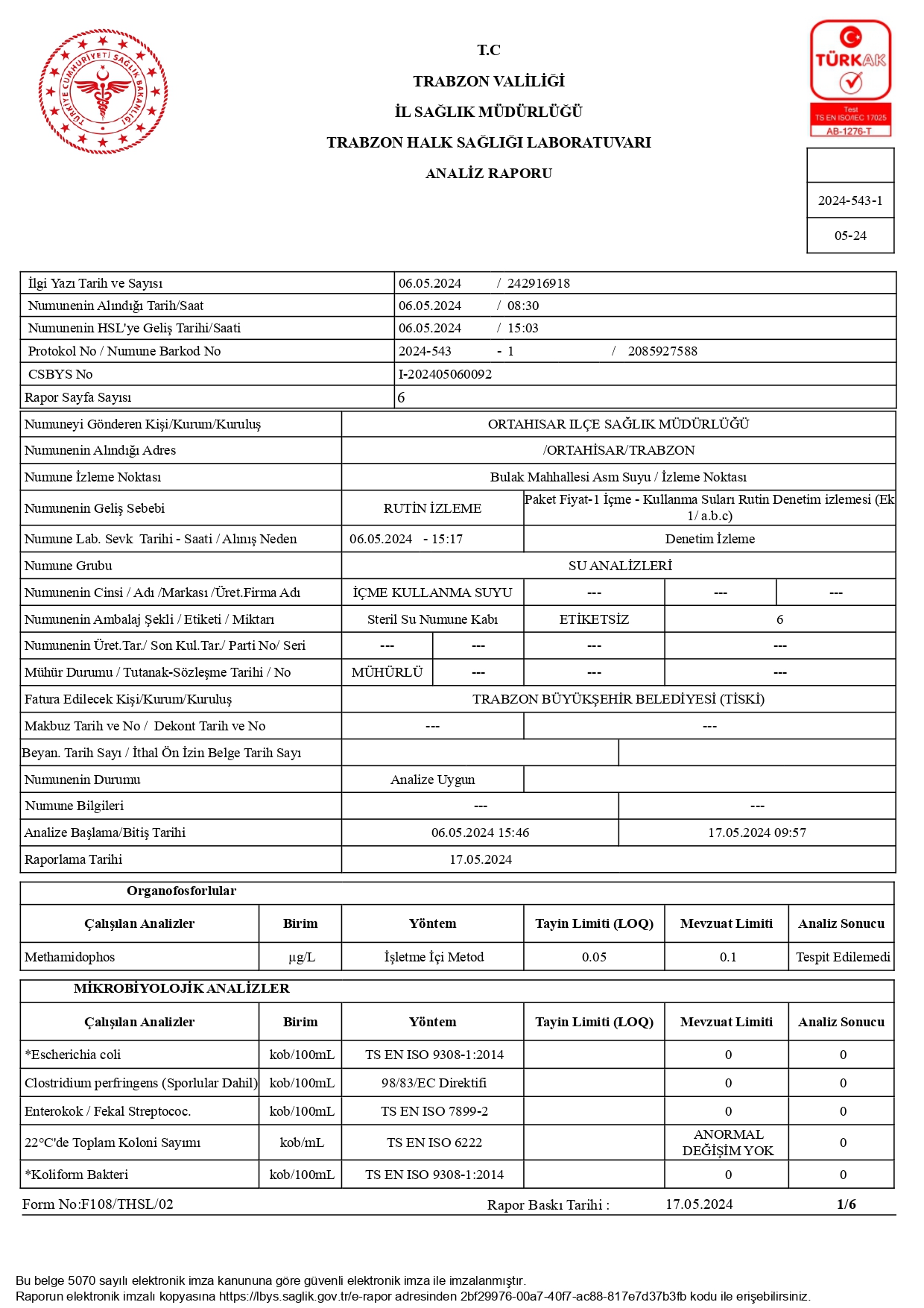
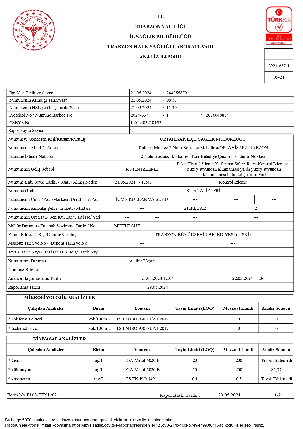
Tüm belediye içme suyu işletmelerinde olduğu gibi TİSKİ Genel Müdürlüğü Merkez Kalite Kontrol Laboratuvarında, Esiroğlu ve Akoluk İçme Suyu Arıtma Tesislerimiz için günlük rutin olarak yapılan analizlerin dışında şebeke ve kaynak suları için belli aralıklarla detaylı ve çok daha fazla parametre içeren analizler de bir program dâhilinde yapılmaktadır. Bahse konu iddiada, laboratuvarımızda sadece 17 parametreden oluşan rutin analizlerin yapılıp yayınlandığı fakat bunun dışında söz konusu ağır metalleri içeren geniş parametreli analizlerin yapılmadığı algısı oluşturulmak istenmektedir.
TİSKİ Genel Müdürlüğümüzün WEB sitesindeki (www.tiski.gov.tr) su analiz raporları belirli periyotlarla güncellenerek yayımlanmaktadır. Bu raporlar detaylı incelendiğinde iddiaların gerçeği yansıtmaktan çok uzak olduğu ve gerek su kaynakları gerekse tüm arıtma tesisleri için belli aralıklarla pek çok parametre içeren analizlerin yapıldığı aşikârdır.
Uzman ekiplerimiz tarafından alınan su numuneleri TİSKİ Genel Müdürlüğümüze ait Kalite Kontrol Laboratuvarında, İnsani Tüketim Amaçlı Sular Hakkında Yönetmelikte yer alan tüm parametrelere göre analiz edilmektedir. Farklı zamanlarda Akoluk ve Esiroğlu Arıtma Tesislerinden alınan şebeke suyu numunesi analizlerinde; Alüminyum, Civa, Kobalt, Demir, Mangan, Amonyum, Antimon, Arsenik, Bakır, Bromür, Çinko, Florür, Fosfat, Kadmiyum Kalsiyum, Klorür, Kurşun, Lityum, Magnezyum, Nikel, Nitrat, Nitrit, Potasyum, Selenyum, Sodyum, Siyanür, Krom ve Baryum parametrelerinde analizler itinayla yapılmaktadır.
Haberde raporlarımızda olmadığı iddia edilen parametreleri içeren geçmişe ait tüm analiz raporları WEB sitemizde (www.tiski.gov.tr) mevcuttur. Ayrıca Trabzon İl Sağlık Müdürlüğü, başta Esiroğlu ve Akoluk İçme Suyu Arıtma Tesislerimiz olmak üzere şehrin 500 noktasından aldığı su numunelerinde yaklaşık 100 parametrede analiz yapmakla birlikte, bugüne kadar herhangi bir olumsuzluğa rastlanmamıştır. Bundan sonra da su kaynaklarımız ve arıtma tesislerimizin işletilmesinde azami hassasiyet gözetilecektir.
Sonuç olarak, Trabzon şehrinin şebeke suyu uluslararası ve ulusal tüm standartlara uygun olup, güvenle içilebilir kalitededir. “Trabzon’da su musluktan içilir” düsturu ile yıllardır halkımıza gönül rahatlığıyla musluklardan sağlıklı su içirmekteyiz ve içirmeye de devam edeceğiz. Suyumuz son derece sağlıklı, temiz ve kesinlikle gönül rahatlığıyla içilebilir niteliktedir. Kamuoyuna saygıyla duyurulur.















Kaynak:

